14
Derby Road, Nottingham, NG7 2DP
Let Agreed
£850 PW
5 bedrooms, 3 bathrooms, 1 receptions
Summary:
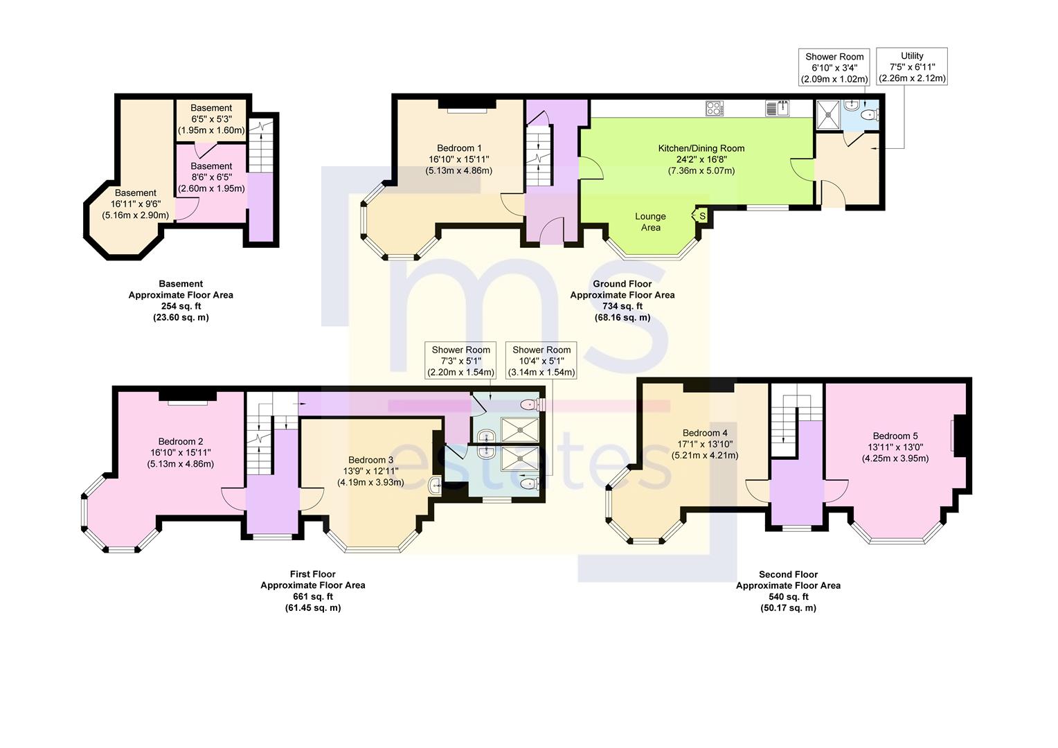
REF: 5/045Secure a spot in this truly unique and very spacious property! This house features distinctive turrets and is situated on a private road overlooking Lenton Park, giving you a tranquil living environment in an excellent location.The house offers 5 large double bedrooms and 3 modern bathrooms, ensuring plenty of comfort and privacy for your group. The communal space is impressive, with a generous open-plan living and kitchen area—perfect for socializing and entertaining—and the kitchen includes a dishwasher.For added convenience, the property includes off-street parking for multiple cars. Best of all, all bills are included in the rent, providing you with a hassle-free student experience!
Key Features:
- STUDENT ACCOMMODATION
- BILLS INCLUDED
- 5 Large double bedrooms
- 3 Bathrooms
- Generous open-plan living and kitchen area
- Dishwasher
- Private road overlooking Lenton Park
- Off street parking for multiple cars
- Excellent Location
Full Details:
Viewing & Disclaimer:
Please contact us on 0115 912 0061 if you wish to arrange a viewing appointment for this property, or require further information.
Energy Performance Certificate
Click here to view the Energy Efficiency Rating and Environmental Impact Rating for this property.
MS Estates - NG7 endeavour to maintain accurate depictions of properties in Virtual Tours, Floor Plans and descriptions, however, these are intended only as a guide and purchasers must satisfy themselves by personal inspection.
